Planirate da riješite svoje stambeno pitanje?
Iskoristite priliku koja se ne propušta!
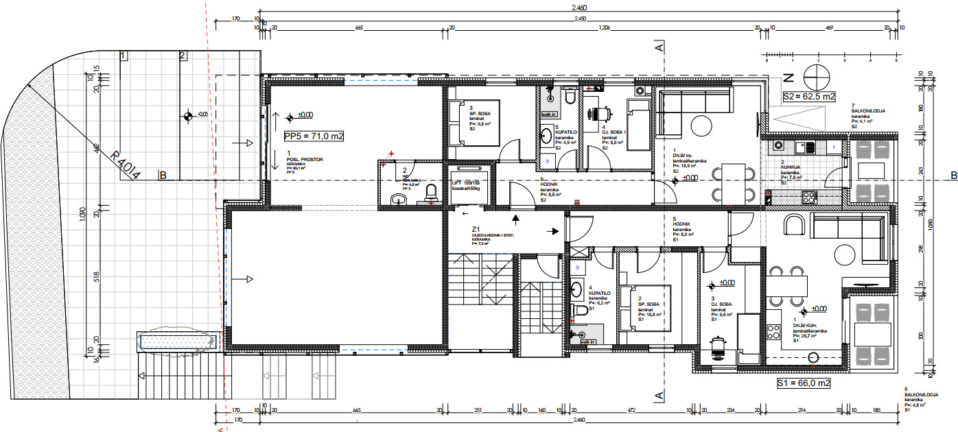
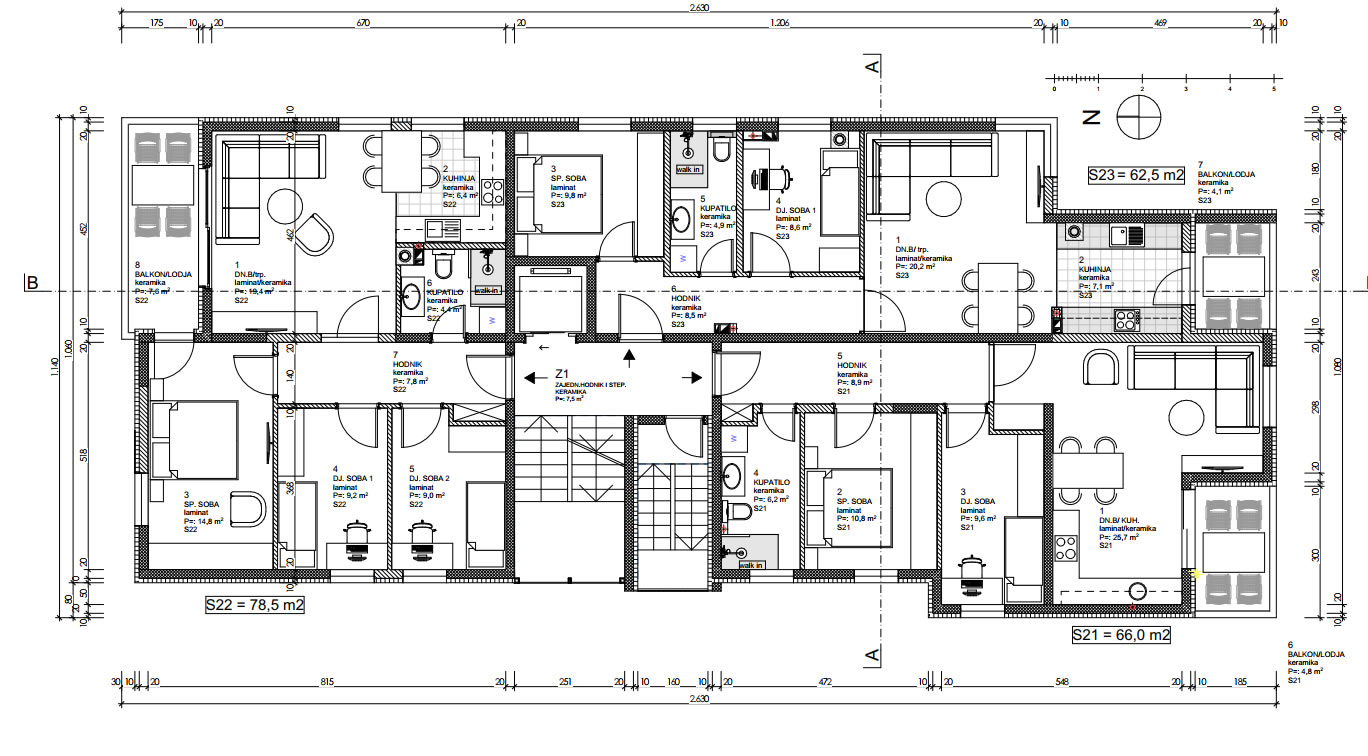
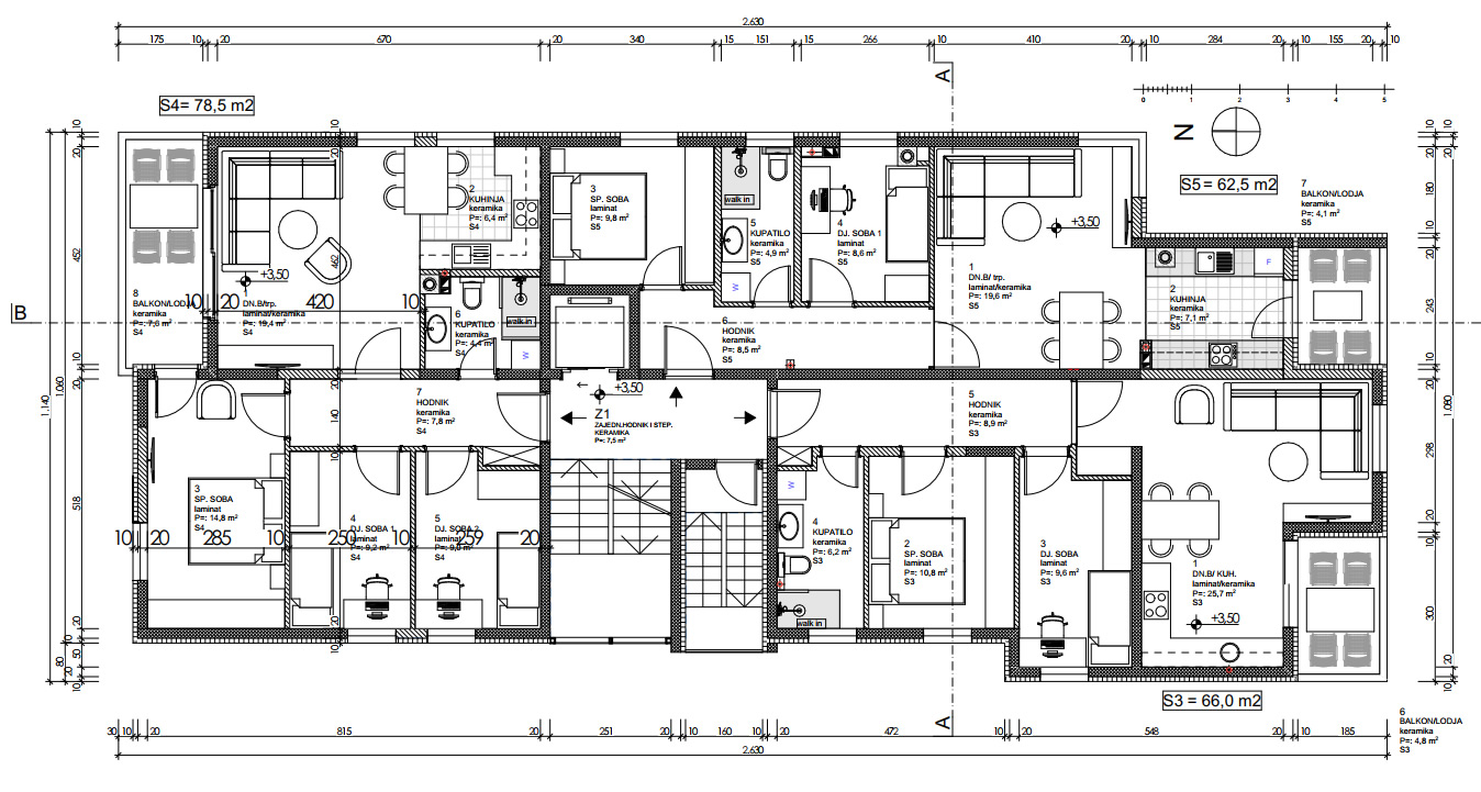
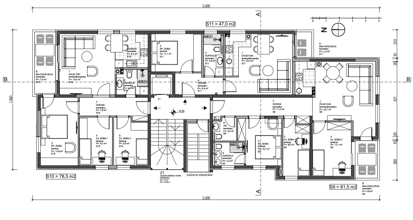
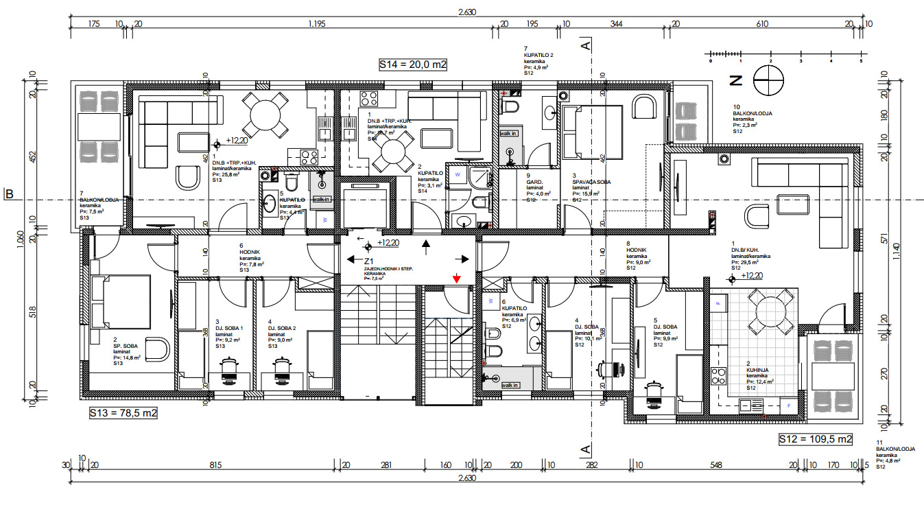
Trenutno smo u procesu izgradnje stambenog objekata u ulici Generala Izeta Nanića ( Bolnička krivina) koji se sastoji od 26 stambenih jedinica i 5 poslovnih prostora. Spratnost objekta je Sut + P + 8 sa stepeništima i liftovima. Posebna pažnja posvećena je usklađivanju optimalnog odnosa strukture i kvadrature, kroz racionalnu i efikasnu organizaciju.
Ne propustite priliku da postanete vlasnik stana ili poslovnog prostora u jednom od najprestižnijih i najdinamičnijih naselja u Cazinu.
VAŠ DOM ILI
SIGURNA INVESTICIJA
Izaberite svoj novi dom na najtraženijoj i najmodernijoj lokaciji u gradu, gdje vrijednost kupljene nekretnine nezaustavljivo raste!
Kompleks ima brojne prednosti zahvaljujući raznovrsnim restoranima, ali i kulturnim, zabavnim i šoping sadržajima koji su na korak od vašeg doma.
POSLOVNO STAMBENA ZGRADA
Pozicioiniran u samom centru Cazina kod stadiona Krajina i budućeg gradskog bazena-Centar grada, blizina administrativnih institucija i gradske bolnice.

| Poslovni prostor 1 | PRODAN | 35.08 m2 |
| Poslovni prostor 2 | PRODAN | 22.31 m2 |
| Poslovni prostor 3 | PRODAN | 46.02 m2 |
| Poslovni prostor 4 | REZERVISAN | 65.24 m2 |

| Stan 1 | REZERVISAN | 65.96 m2 |
| Stan 2 | PRODAN | 63.55 m2 |
| Poslovni prostor 5 | PRODAN | 65.58 m2 |

| Stan 21 | REZERVISAN | 66.98 m2 |
| Stan 22 | REZERVISAN | 78.45 m2 |
| Stan 23 | REZERVISAN | 63.55 m2 |

| Stan 24 | NIJE DOSTUPNO | 66.98 m2 |
| Stan 25 | NIJE DOSTUPNO | 78.45 m2 |
| Stan 26 | NIJE DOSTUPNO | 63.55 m2 |
IMATE PITANJA?
Za sve dodatne informacije, objašnjenja i ponude slobodno nam se možete javiti.





